Über das Projekt
In der Gumpendorfer Straße 60 in Wien Mariahilf entsteht ein Neubaugebäude mit 56 Serviced Apartments zwischen 36.79 m² bis 79.7 m².
Serviced Apartments sind eine attraktive Option für Anleger, die auf der Suche nach einer rentablen und zugleich risikoarmen Investition sind. Diese voll möblierten Apartments bieten eine flexible Möglichkeit, in den Markt des temporären Wohnens zu investieren und eine langfristige Rendite zu erzielen. Als Anleger profitiert man von der hohen Nachfrage nach zeitweiligen Unterkünften und kann sich auf eine zuverlässige Vermietung durch erfahrene Management-Teams verlassen. Durch die Kombination von Hotel-ähnlichen Services mit dem Komfort eines eigenen Zuhauses schaffen Serviced Apartments ein einzigartiges Wohngefühl, das auch bei Geschäftsreisenden, Touristen und anderen temporären Aufenthaltsgruppen immer beliebter wird.
Das Projekt liegt nur rund 200 Meter von der Mariahilfer Straße entfernt. In der unmittelbaren Umgebung finden sich nicht nur Geschäfte des täglichen Bedarfs sondern auch das Apollo-Kino sowie zahlreiche Lokale und Cafés. Die öffentliche Anbindung ist als sehr gut zu bezeichnen - Bus und U-Bahn sind in wenigen Minuten zu erreichen, der Westbahnhof liegt nur 1,3 km entfernt.
Ausstattung
- Fußbodenheizung, Fernwärme
- Apartments ab dem 2. OG mit Klimaanlage in Aufenthaltsräumen
- Eichenparkettboden Natur lackiert, Bodenfliesen 60x60 cm
- Kunststofffenster, im Straßentrakt werden Bestandsfenster saniert
- Dachflächenfenster mit manuell oder elektrisch bedienbaren Sonnenschutz
- Einbruchhemmende Vollbautüren
- Personenaufzug
Über die Wohnung
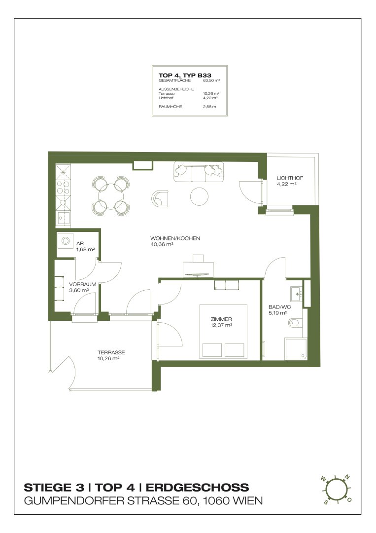
Diese top eingerichtete 2-Zimmer Wohnung bietet einen über 40 m² großen offenen Wohnbereich mit Küche, ein Schlafzimmer, einen Vorraum, einen Abstellraum mit Waschmaschinenanschluss und ein Badezimmer mit Dusche und WC. Das Highlight der Wohnung ist die 4,22 m² große Lichthof, welche an den Wohnbereich angrenzt.
Die Raumaufteilung im Detail
- Vorraum mit 3,60 m²
- Offene Wohnküche mit 40,66 m²
- Zimmer mit 12,37 m²
- Badezimmer mit Dusche und WC
- Abstellraum mit Waschmaschinenanschluss
- Lichthof bei Wohnküche mit 4,22 m²
Aufgrund der Nachweispflicht gegenüber dem Eigentümer können nur schriftliche Anfragen mit vollständigen Kontaktdaten (Name, Anschrift, Tel.-Nr., E-Mail) beantwortet werden.
Irrtum und Änderungen vorbehalten. Oben angeführte Angaben basieren auf Informationen und Unterlagen des Eigentümers und sind unsererseits ohne Gewähr.
Wir weisen darauf hin, dass zwischen dem Vermittler und dem zu vermittelnden Dritten ein familiäres oder wirtschaftliches Naheverhältnis besteht.
Der Vermittler ist als Doppelmakler tätig.




























