2-Room Serviced Apartment with Loggia | Vienna Mariahilf | Commission-free for the Buyer

Ort
1060 Wien
Address
Gumpendorfer Straße 60
Floor
1 of 8
Kaufpreis 518.000 €
Rooms 2
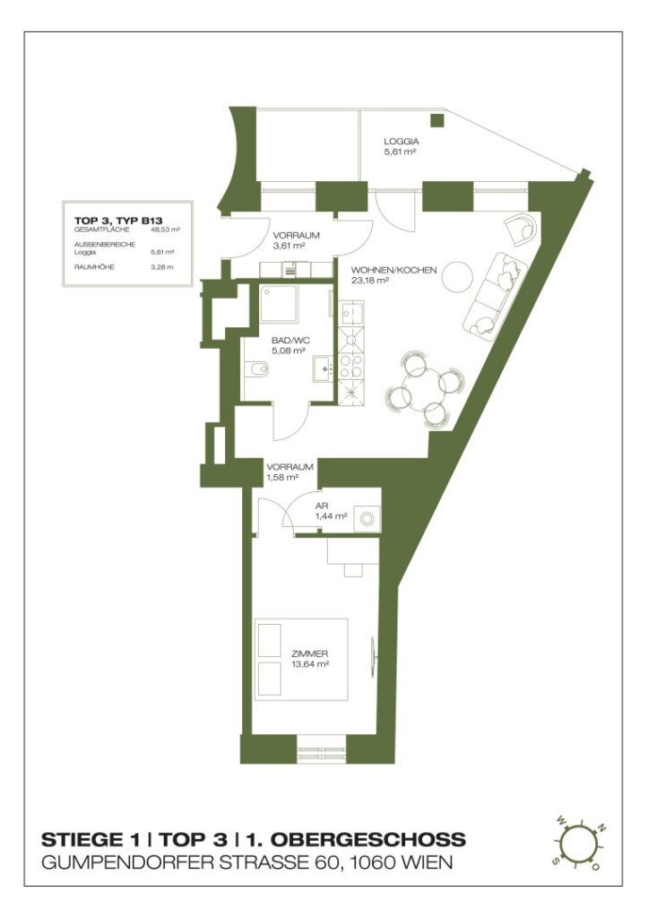
Living area approx. 48,53 m²

* Financing approval is subject to the accuracy and completeness of the information provided.

Property description

About the Project

A new building with 56 serviced apartments ranging from 36.79 m² to 79.7 m² is being constructed at Gumpendorfer Straße 60 in Vienna Mariahilf.

Serviced apartments are an attractive option for investors looking for a profitable and low-risk investment. These fully furnished apartments offer a flexible way to invest in the temporary housing market and achieve long-term returns. As an investor, one benefits from the high demand for temporary accommodations and can rely on reliable rentals managed by experienced management teams. By combining hotel-like services with the comfort of a home, serviced apartments create a unique living experience that is increasingly popular among business travelers, tourists, and other temporary residents.

The project is located only about 200 meters from Mariahilfer Straße. In the immediate vicinity, there are not only shops for daily needs but also the Apollo cinema, as well as numerous restaurants and cafés. Public transport connections are very good – buses and the subway can be reached within minutes, and the Westbahnhof is only 1.3 km away.

Features

- Underfloor heating, district heating
- Apartments from the 2nd floor with air conditioning in living areas
- Natural lacquered oak parquet flooring, floor tiles 60x60 cm
- Plastic windows, existing windows in the street section will be renovated
- Roof windows with manually or electrically operated sun protection
- Burglar-resistant full-frame doors
- Passenger elevator 

About the Apartment 

This modern 2-room apartment features an open living area with kitchen, a bedroom, an entrance hall, a storage room with washing machine connection, and a bathroom with shower and toilet. The highlight of the apartment is the approximately 5.6 m² large loggia.

Detailed Room Layout

- Entrance hall with 3.61 m²
- Open living kitchen with 23.18 m²
- Room with 13.64 m²
- Bathroom with shower and toilet
- Storage room with washing machine connection
- Loggia at living kitchen and room with 5.61 m²

 

Due to the obligation to provide proof to the owner, only written inquiries with complete contact details (name, address, phone number, email) can be answered.

Errors and changes reserved. The information provided above is based on information and documents from the owner and is provided without guarantee on our part.

Please note that there is a close familial or economic relationship between the broker and the client.

The agent acts as a double broker.

View moreWeniger anzeigen

Property details

Living area
approx. 48,53 m²
Number of rooms
2
Number of bathrooms
1
Number of separate WCs
1
Number of loggias
1
Balcony/terrace area
approx. 5,61 m²
Kaufpreis
518.000 €
Purchase Price (incl. VAT)
518.000 €
Buyer Commission
Commission paid by the owner.
Available from
ready to move in
Year built
2022
Condition
First occupancy
Building type
New building

Features

Loggia

Energy performance certificate (EPC)

Year built2022
Energy certificate typeDemand certificate
Valid until21.02.2032
Heating demand (kWh/m²/year)66.17 kWh/(m²·a)
Heating demand classC
Energy efficiency1.13
Energy efficiency classC

Curious to know more?

More properties to discover:

Kauf
Aussicht

16443343

Wien,Landstraße
93,16 m²
3
2
Kaufpreis 969.000 €

Contact form