About the Project
A new building with 56 serviced apartments ranging from 36.79 m² to 79.7 m² is being constructed at Gumpendorfer Straße 60 in Vienna Mariahilf.
Serviced apartments are an attractive option for investors looking for a profitable and low-risk investment. These fully furnished apartments offer a flexible way to invest in the temporary housing market and achieve long-term returns. As an investor, one benefits from the high demand for temporary accommodations and can rely on reliable rentals managed by experienced management teams. By combining hotel-like services with the comfort of a home, serviced apartments create a unique living experience that is increasingly popular among business travelers, tourists, and other temporary residents.
The project is located only about 200 meters from Mariahilfer Straße. In the immediate vicinity, there are not only shops for daily needs but also the Apollo cinema, as well as numerous restaurants and cafés. Public transport connections are very good – buses and the subway can be reached within minutes, and the Westbahnhof is only 1.3 km away.
Features
- Underfloor heating, district heating
- Apartments from the 2nd floor with air conditioning in living areas
- Natural lacquered oak parquet flooring, floor tiles 60x60 cm
- Plastic windows, existing windows in the street section will be renovated
- Roof windows with manually or electrically operated sun protection
- Burglar-resistant full-frame doors
- Passenger elevator
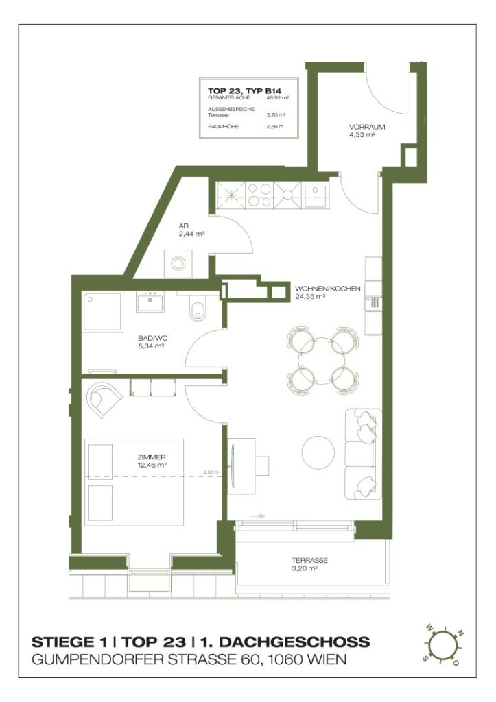
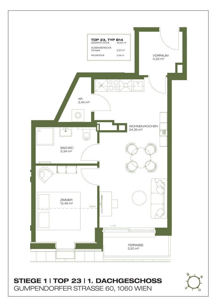
About the Apartment
This fully furnished 2-room apartment offers an open living area with kitchen, a bedroom, an entrance hall, a storage room with washing machine connection, and a bathroom with shower and toilet. The highlight of the apartment is the 3.20 m² terrace, which adjoins the living area.
Room Layout in Detail
- Entrance hall with 4.33 m²
- Open living kitchen with 24.35 m²
- Room with 12.46 m²
- Bathroom with shower and toilet
- Storage room with washing machine connection
- Terrace at living kitchen with 3.20 m²
Due to the obligation to provide proof to the owner, only written inquiries with complete contact details (name, address, phone number, email) will be answered.
Errors and changes reserved. The information provided above is based on information and documents from the owner and is provided by us without guarantee.
Please note that there is a close familial or economic relationship between the broker and the client.
The agent acts as a double broker.




























