About the Project
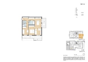
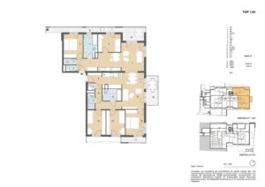
This new construction project with 27 exquisitely equipped condominiums is located in Klosterneuburg, specifically near the abbey. The apartments are thoughtfully designed and offer a variety of floor plans. From compact one-bedroom apartments with a separate sleeping area (starting at approx. 31 m²) to spacious 7-room apartments, there is something for every need. The apartments feature generous outdoor spaces, including private gardens, balconies, and terraces oriented to the south, east, and west. From here, you can enjoy a direct view of the historically significant cathedral abbey with its baroque gardens or the floodplains and Bisamberg.
The residential project is situated in an established residential area in Klosterneuburg, near the city center. In the immediate vicinity, there are a variety of amenities such as local suppliers, banks, doctors, and shops for daily needs. Residents also benefit from the proximity to public educational institutions such as kindergartens, primary schools, and high schools, all reachable within just a few minutes.
Features
- Underfloor heating, district heating
- Multi-split air conditioning in the attic apartments
- Real wood parquet floors, large-format tiles in the sanitary rooms
- Aluminum-wood windows with triple-glazed insulating glass
- All windows equipped with sun protection, according to building physics
- Interior doors with wooden frame surrounds
- Package reception boxes in the entrance area
- Green meeting area with children's playground
- Bicycle and stroller storage rooms
- 27 parking spaces
Please note that there is a close familial or economic relationship between the broker and the client.
The agent acts as a double broker.
1
1. Etage
Top 03: 154.43 m² €1,021,000.00 active
Top 06: 149.26 m² €1,156,000.00 active
3. Etage
Top 13: 71.27 m² €569,000.00 active
1. DG
Top 18: 145.8 m² €1,122,200.00 active
Top 19: 138.25 m² €1,260,000.00 active
2
EG
Top 02: 106.54 m² €800,000.00 active
Top 03: 82.67 m² €653,000.00 active
1. DG
Top 08: 175.87 m² €1,395,000.00 active



































