3-Room Apartment with Balcony and Terrace | First Occupation in 3400 Klosterneuburg

Ort
3400 Klosterneuburg
Address
Am Renninger 10
Floor
3 of 6
Kaufpreis 569.000 €
Rooms 3
Living area approx. 71,27 m²

* Financing approval is subject to the accuracy and completeness of the information provided.

Property description

About the Project

This new construction project with 27 exquisitely equipped condominiums is located in Klosterneuburg, specifically near the abbey. The apartments are thoughtfully designed and offer a variety of floor plans. From compact one-bedroom apartments with a separate sleeping area (starting at approx. 31 m²) to spacious 7-room apartments, there is something for every need. The apartments feature generous outdoor spaces, including private gardens, balconies, and terraces oriented to the south, east, and west. From here, you can enjoy a direct view of the historically significant cathedral abbey with its baroque gardens or the floodplains and Bisamberg.

The residential project is situated in an established residential area in Klosterneuburg, near the city center. In the immediate vicinity, there are a variety of amenities such as local suppliers, banks, doctors, and shops for daily needs. Residents also benefit from the proximity to public educational institutions such as kindergartens, primary schools, and high schools, all reachable within just a few minutes.

Features

- Underfloor heating, district heating
- Multi-split air conditioning in the attic apartments
- Real wood parquet floors, large-format tiles in the sanitary rooms
- Aluminum-wood windows with triple-glazed insulating glass
- All windows equipped with sun protection, according to building physics
- Interior doors with wooden frame surrounds
- Package reception boxes in the entrance area
- Green meeting area with children's playground
- Bicycle and stroller storage rooms
- 27 parking spaces

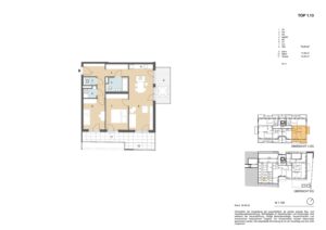
About the Apartment Top 1.13

For sale is a 3-room apartment that impresses with its thoughtful layout. The living area is generously designed and combines a modern living kitchen that provides access to two outdoor areas, inviting you to relax outdoors. Whether you want to enjoy a sunbath or spend a cozy evening outside, these outdoor areas offer you a variety of options.

The bathroom of the apartment is equipped with a stylish bathtub and also has a WC. A separate WC is available for your guests. A practical storage room offers space for your washing machine and creates additional storage for your personal belongings.

The second outdoor area is accessible not only from the living area but also offers a separate entrance to the two rooms. This thoughtful design allows you to enjoy an additional connection to nature and fresh air.

The Room Layout in Detail

- Open living kitchen with approx. 26.35 m²
- Room 1 with approx. 13.35 m²
- Room 2 with approx. 11.02 m²
- Bathroom with bathtub and WC with approx. 4.81 m²
- Separate WC with approx. 1.49 m²
- Storage room with approx. 2.16 m²
- Entrance hall with approx. 7.45 m²
- Corridor with approx. 4.72 m²

- Balcony with approx. 8.79 m²
- Balcony with approx. 3.10 m²
- Terrace with approx. 12.05 m²

 

Due to the obligation to provide evidence to the owner, only written inquiries with complete contact details (name, address, phone number, email) can be answered.

Errors and changes reserved. The above information is based on information and documents from the owner and is provided without warranty.

All visualizations are to be understood as furnishing suggestions. All m² are approximate specifications. 

Please note that there is a close familial or economic relationship between the broker and the client.

The agent acts as a double broker.

View moreWeniger anzeigen

Property details

Living area
approx. 71,27 m²
Number of rooms
3
Number of bathrooms
1
Number of separate WCs
2
Number of balconies / terraces
2
Number of terraces
1
Balcony/terrace area
approx. 23,94 m²
Cellar area
approx. 2,52 m²
Kaufpreis
569.000 €
Purchase Price (incl. VAT)
569.000 €
Commission Obligatory
Ja
Buyer Commission
3% of purchase price plus 20% VAT
Available from
ready to move in
Year built
2022
Condition
First occupancy

Features

Balcony
Bathroom with bathtub
Open kitchen
Tiles
Parquet
Passenger elevator
Underground parking space
Guest WC

Energy performance certificate (EPC)

Year built2022
Energy certificate typeDemand certificate
Valid until13.01.2029
Heating demand (kWh/m²/year)30.63 kWh/(m²·a)
Heating demand classB
Energy efficiency0.77
Energy efficiency classA
Heating typeCentral heating, Underfloor heating
Energy sourceDistrict heating

Curious to know more?

More properties to discover:

Kauf
Aussicht

16443343

Wien,Landstraße
93,16 m²
3
2
Kaufpreis 969.000 €

Contact form